SEU MENINO FILMES
Arquitetos: Studio 17
Área de Projeto: 55m²
Ano: 2022
Localização: Vila Gertrudes, São Paulo
Fotografias: Studio 17
Fabricantes: Marcenaria Serrana, Pierre Mármores, Fernando Jaeger, LabLuz,
Digilam e JF Paisagismo
Área de Projeto: 55m²
Ano: 2022
Localização: Vila Gertrudes, São Paulo
Fotografias: Studio 17
Fabricantes: Marcenaria Serrana, Pierre Mármores, Fernando Jaeger, LabLuz,
Digilam e JF Paisagismo
SOBRE
Localizado na zona sul da capital paulista, o espaço abriga a operação da nova sede da produtora Seu Menino Filmes que tem atuação focada na produção de mídias e conteúdo digital. Duas salas comerciais se integram neste projeto que busca abrir espaço para integração dos colaboradores a todo instante permitindo o trabalho colaborativo que é parte importante do DNA da empresa. O andar elevado e a vista privilegiada da cidade de São Paulo contribuem para a criação diária e são um convite ao pôr do sol.
PROJETO
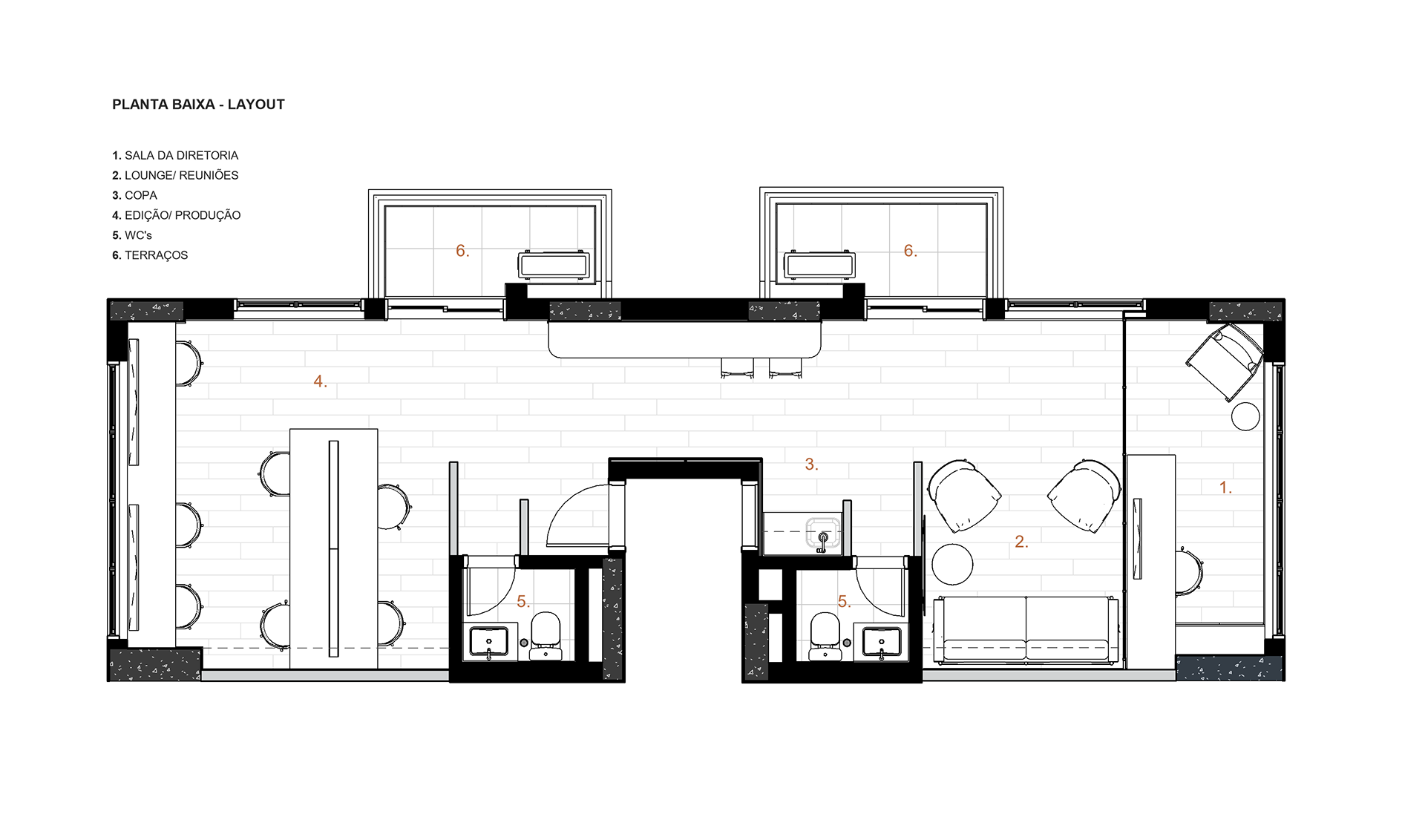
Área de intervenção: salas comerciais/ copa e WC’s
A integração das duas salas e a criação de anteparos demarcando o acesso principal, os acessos aos WC’s e a área da copa, são as principais intervenções na planta que é dívida entre o espaço da diretoria, integrado ao Lounge, e o espaço de edição e reuniões colaborativas através do mobiliário desenvolvido para este fim. E entre eles, a copa e uma bancada marcam um ponto de encontro num pequeno espaço para descontração e uma boa conversa com um café quentinho.
O projeto foi desenvolvido através da metodologia BIM proporcionando melhores tomadas de decisão, auxílio no processo criativo e, principalmente, diminuição de erros de obra e desperdício de materiais



DETALHES
As mesas em grandes dimensões são o destaque na área de edição e produção. São elas que propiciam o trabalho integrado e colaborativo que alimenta a empresa. Na interligação dos espaços, a bancada curva em granito preto são Gabriel escovado convida as pessoas a uma parada. Já no espaço da diretoria, a paleta de cores mais neutras e sóbrias, ganha equilíbrio nas cores do mobiliário escolhido para o lounge.